Unsere App

Sie haben Fragen?

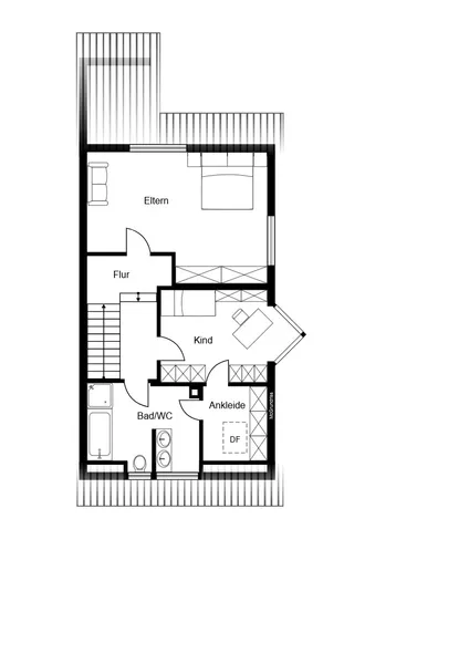
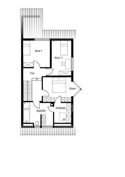
Wohnung zum Kauf 51465 Bergisch Gladbach

Wohnen wie im eigenen Haus mit Blick ins Grüne - kein Hausgeld, keine Versammlungen, nur 2 WE

Bilder anzeigen (19)
  • Preis auf Anfrage
  • Objekt-Nr.: 66275-8455
  • 4 Zimmer
  • 3 Schlafzimmer
  • 1 Badezimmer
Teilen auf:

*Pflichtfelder Ihre Anfrage

Neueste Immobilien

53639 KönigswinterEin- oder Zweifamilienhaus mit vielseitigen Nutzungsmöglichkeiten *provisionsfrei*

  • 6
Wohnfl.: 123,81 m²

Kaufpreis
398.000 €

45476 Mülheim an der Ruhr - StyrumMülheim-Styrum / günstige Wohnung zur Eigennutzung oder als Kapitalanlage!

  • 2
  • 1
  • 1
Wohnfl.: 58 m²

Kaufpreis
85.000 €