Unsere App

Sie haben Fragen?

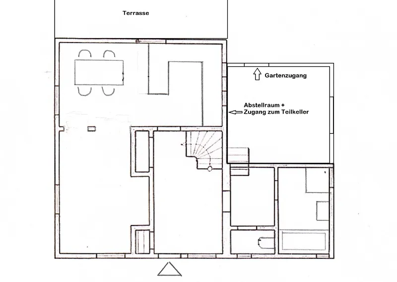
Haus zum Kauf 58119 Hagen - Wesselbach

Fachwerkidylle mit Weidefläche – kleines Haus, großes Grundstück - perfekt für Tier- und Naturfreunde

Bilder anzeigen (19)
  • 185.000 €
  • Objekt-Nr.: 172732-6578
  • 4 Zimmer
  • 3 Schlafzimmer
  • 1 Badezimmer
Teilen auf:

*Pflichtfelder Ihre Anfrage

Neueste Immobilien

40547 Düsseldorf - Löricksonnige 5 Zi. ETW in herrlicher Lage (nähe Wochenmarkt) von Lörick

  • 5
  • 3
  • 1
Wohnfl.: 100 m²

Kaufpreis
489.500 €

45966 Gladbeck - Zweckel5-Familienhaus mit 2 Garagenhöfen (28 Garagen) in Gladbeck!

  • 30
Wohnfl.: 346,73 m²

Kaufpreis
735.000 €