Unsere App

Sie haben Fragen?

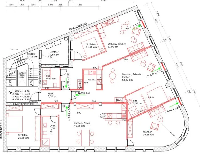
Büro/Praxis zur Miete 44135 Dortmund - Dortmund-Innenstadt

*PROVISIONSFREI* ca. 450 – 910 m² Büro-/Praxisflächen am Ostenhellweg zu vermieten!

Bilder anzeigen (11)
  • 4.275 €
  • Objekt-Nr.: 91927-7465-2
  • 16 Zimmer
  • 2 Stellplätze
  • 450 m² Bürofläche
Teilen auf:

*Pflichtfelder Ihre Anfrage

Neueste Immobilien

47445 Moers - UtfortGroßzügige Doppelhaushälfte in Top-Lage von Moers-Utfort

  • 6
  • 2
Wohnfl.: 128 m²

Kaufpreis
368.000 €

58285 Gevelsberg - ZentrumsrandAltbaucharme unterm Dach: Modernisierte Dachgeschosswohnung im Herzen Gevelsbergs

  • 4
  • 3
  • 1
Wohnfl.: 80,93 m²

Miete zzgl. NK
610 €