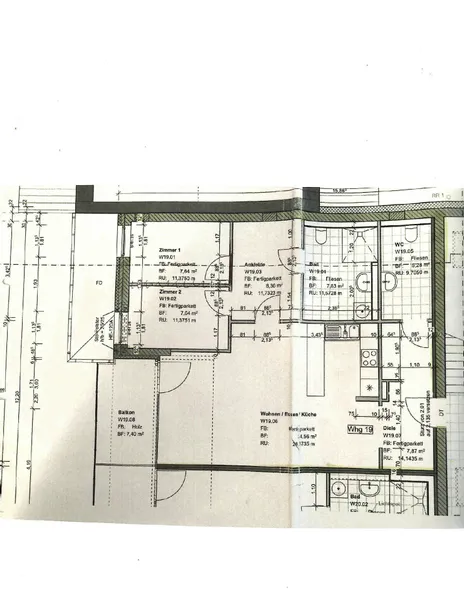
Wohnung zur Miete Alte Münsterstr. 10, 59368 Werne
*Pflichtfelder Ihre Anfrage
Neueste Immobilien
53797 Lohmar / BirkIhr neues Zuhause: Exklusive Doppelhaushälften mit Top‑Ausstattung in Lohmar
Kaufpreis
599.000 €
51467 Bergisch Gladbach - SchildgenVerkaufsstart in Schildgen: 3-Zimmer-Eigentumswohnung mit großer Sonnenterrasse und Garage
Kaufpreis
195.000 €
Für Ihre Immobilie finden wir zeitnah einen solventen Mieter.
Ergänzend bieten wir eine Online-Marktwerteinschätzung an.
Hier sehen Sie unsere aktuellen Angebote zum Kauf und zur Miete.
Für Ihre Immobilien erzielen wir einen guten Preis – zeitnah und marktgerecht.